Perfil Línea S60 ventana
Ventana S60
Perfil Línea S60 puerta
Puerta S60

Línea S60

Se utiliza para fabricar ventanas de doble contacto y fue especialmente diseñada para el frío extremo. Con perfiles de 60mm. de ancho y 4 cámaras de aire en su interior, entrega un alto desempeño térmico y acústico.

Todos sus perfiles traen refuerzos de acero galvanizado y burletes de TPE incorporados (compuesto que permite ser termofusionado en conjunto con la ventana). La línea S60 cumple con los altos estándares de calidad europeos y se ha sometido a los más exigentes ensayos, lo que asegura un producto confiable y de primera calidad.

Colores Disponibles

Nogal Color Renolit
Nogal
Roble Color Renolit
Roble
Blanco Color Renolit
Blanco
Grafito Color Renolit
Grafito
New Black Color Renolit
New Black
Configuración Puerta corredera doble riel sistema Sliding New S75 Winhouse Chile
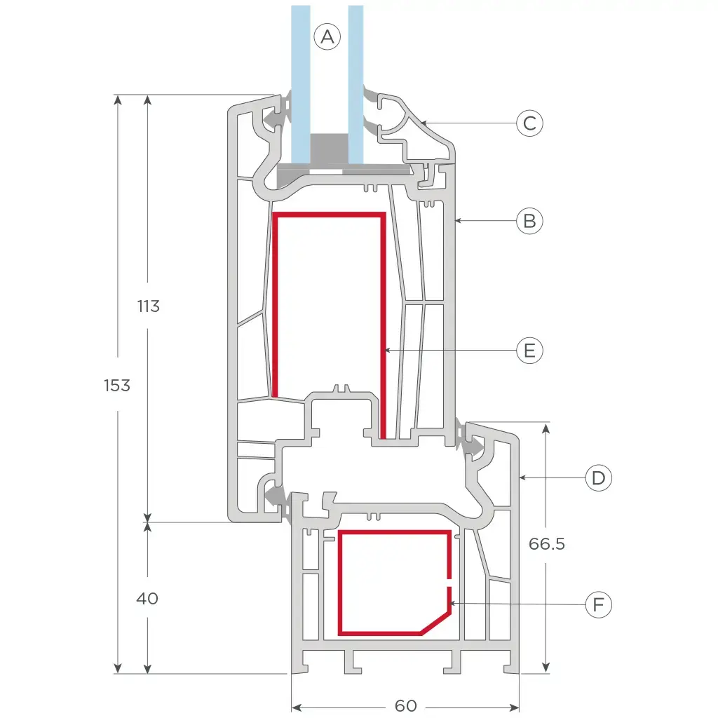
Corte Ventana S60
A. Termopanel
B. Hoja ventana exterior S60
C. Junquillo termopanel
D. Marco fijo S60
E. Ref. múltiple con inclinación
F. Ref. BOX marco fijo con inclinación
linea s60 puerta configuracion técnica
Corte Puerta S60
A. Termopanel
B. Hoja ventana exterior S60
C. Junquillo termopanel
D. Marco fijo S60
E. Ref. hoja puerta S60
F. Ref. BOX marco fijo

Línea S60 Aperturas

Línea S60 Ventajas

Costo competitivo

Costo

10% a 20% más económico que cualquier sistema abatible de similares características.
Refuerzo New S75 icono

Refuerzos

100% REFORZADA, mejora la inercia y el funcionamiento de la ventana.
Junquillos icono

Junquillos

Todos INTERIORES, facilita la reposición e instalación de cristales.
cámaras icono

Cámaras

4 cámaras de aislación térmica.
burletes icono

Burletes

TPE burlete termofusionado, mejora la estanqueidad de la ventana.
acristalamiento icono

Acristalamiento

Compatible con espesores 4mm – 32mm.

Seguridad icono

Seguridad

Compatible con cremonas multipunto en todas sus soluciones.
colores icono

Colores

Mantenemos stock permanente en colores: ROBLE, NOGAL, BLANCO, GRAFITO y NEW BLACK.

Otras líneas de perfiles

Sliding NEW S75: evolución del sistema corredera en PVC con alto aislamiento.
Soluciones innovadoras para nuestro mercado.
Sistema corredera elevadora de calidad superior.
Protección y comodidad para tus ventanas correderas.